Licensed & Insured Concrete Contractor

Gentrup Concrete LLC is fully licensed, bonded, and insured to perform residential and commercial concrete work throughout Cincinnati and Northern Kentucky.
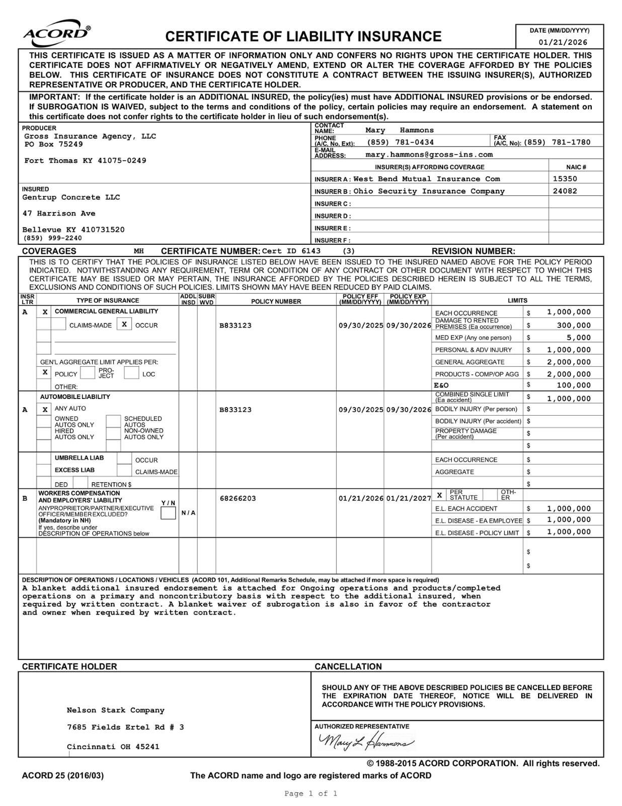
We carry the proper coverage to protect your property, your project, and our team on every job.
👉 We can provide project-specific certificates of insurance listing homeowners, property managers, or general contractors as additionally insured upon request.
Licensing & Bonding
- City of Cincinnati Licensed Street Contractor (#667335)
- Bonded in accordance with city requirements ($10,000 performance bond)
- Approved to perform work within public right-of-way and permitted areas
Insurance Coverage
We maintain comprehensive insurance coverage, including:
- General Liability Insurance
- Workers’ Compensation Coverage
- Commercial Auto Liability
Coverage includes:
- $1,000,000 per occurrence
- $2,000,000 aggregate
Additional insured endorsements and certificates of insurance can be provided upon request for homeowners, property managers, and general contractors.
Why This Matters
Hiring a properly licensed and insured contractor protects you from:
- liability if an accident occurs
- damage to your property
- unqualified or non-compliant work
Unfortunately, we are often called to fix or complete projects started by uninsured or underqualified contractors.
Piece of Mind
When you choose Gentrup Concrete LLC, you’re working with a company that meets all professional requirements and stands behind its work with proper coverage, experience, and accountability.







